Biệt thự BT02 là một công trình biệt thự đẹp 3 tầng được thiết kế và thi công trọn gói bởi Kiến trúc HOH tại Hải Phòng.
Với phong cách kiến trúc hiện đại, tối giản và sang trọng, BT02/03 không chỉ là một không gian sống lý tưởng mà còn là biểu tượng cho xu hướng thiết kế biệt thự hiện đại năm 2025.
Tên dự án
LAN’S VILLA – BT02 – TP. HẢI PHÒNG
Vị trí
TP.Hải Phòng
Hạng mục thực hiện
Thiết kế - Thi công nội thất
Thể loại
Biệt Thự - Nhà ở
Diện tích
Hoàn thành
2025
Về LAN’S VILLA – BT02 – TP. HẢI PHÒNG
Tên công trình: Biệt thự BT02
Địa điểm: Hải Phòng
Chủ đầu tư: Mr.Lan
Thiết Kế & Thi Công Hoàn Thiện: Kiến Trúc HOH
Loại hình: Biệt thự 3 tầng hiện đại
Phong cách: Hiện đại – Sang trọng – Tối giản
Thiết Kế Ngoại Thất – Biệt Thự Hiện Đại Tối Giản
Mặt tiền biệt thự nổi bật với các khối hình học mạnh mẽ, đường nét rõ ràng kết hợp cùng vật liệu cao cấp như đá tự nhiên, kính cường lực và gỗ nhựa ngoài trời. Tông màu trung tính (trắng, xám, đen) tạo nên vẻ đẹp sang trọng và hiện đại cho công trình.
Phối cảnh biệt thự 3D được thiết kế kỹ lưỡng, kết hợp hài hòa với cảnh quan và hệ thống cây xanh, mang lại tổng thể kiến trúc bền vững và thân thiện.

Thiết Kế Nội Thất Biệt Thự Cao Cấp – Tối Ưu Không Gian Sống
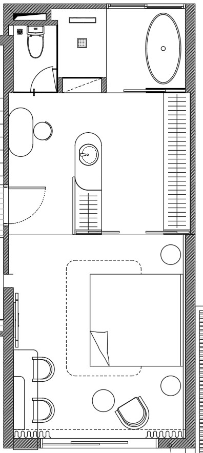
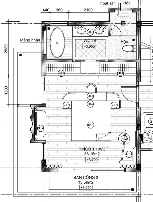
Phòng khách biệt thự thông tầng
Không gian phòng khách được thiết kế thông tầng cao rộng với ánh sáng tự nhiên chan hòa. Bộ sofa cao cấp kết hợp cùng tranh đá xuyên sáng tạo điểm nhấn sang trọng. Đèn chùm thả trần theo phong cách hiện đại tạo nên không gian sống đậm chất cá nhân.
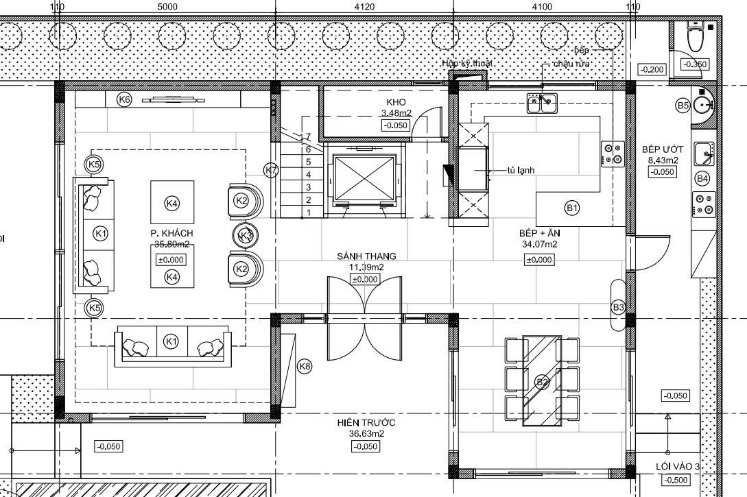
Khu vực bếp – ăn mở hiện đại
Khu bếp liên thông với phòng ăn theo xu hướng thiết kế không gian mở. Đảo bếp tích hợp tủ rượu sang trọng, mặt bếp sử dụng đá nhân tạo dễ vệ sinh và bền đẹp. Bộ bàn ăn 8 ghế cao cấp cùng đèn thả tạo nên điểm nhấn tinh tế.
Tất cả nội thất biệt thự được lựa chọn theo tiêu chí: thẩm mỹ – công năng – độ bền.

Biệt Thự 3 Tầng Hiện Đại – Phong Cách Sống Thượng Lưu Tại Hải Phòng
Biệt thự BT02 thể hiện rõ nét phong cách sống đẳng cấp, phù hợp với xu hướng biệt thự hiện đại tối giản. Không gian được tổ chức khoa học, tối ưu diện tích sử dụng và công năng. Hệ thống thông gió và lấy sáng tự nhiên được tính toán kỹ lưỡng trong từng chi tiết.
BT02 là một trong những công trình kiến trúc nổi bật tại Hải Phòng trong năm 2025, thể hiện năng lực thiết kế và thi công biệt thự của đơn vị thiết kế biệt thự uy tín – Kiến trúc HOH.
